Με τις αυξήσεις στις τιμές των ενοικίων και την ακρίβεια στα πάντα, δεν είναι λίγοι εκείνοι που ψάχνουν για μια πιο οικονομική λύση για την στέγαση.
Μια εταιρεία στην Λευκάδα προσφέρει ακριβώς αυτό. Ξύλινα σπίτια που μπορείς να τα παραγγείλεις μέσα από το site της εταιρείας και να τα δεις εγκατεστημένα στον χώρο σου σε λίγες μόνο ημέρες.
Η εταιρία ονομάζεται Oikodecor και διαθέτει μια μεγάλη ποικιλία ξύλινων σπιτιών στην σελίδα της από τα οποία μπορείς να επιλέξεις όποιο θέλεις εσύ ή να τους ζητήσεις το δικό σου ανάλογα με τις ανάγκες σου. Το κόστος κυμαίνεται ανάλογα με τα τετραγωνικά της οικίας.
Σύμφωνα με τους υπεύθυνους της εταιρείας για να το αποκτήσετε το μόνο που χρειάζεται είναι μια άδεια προκάτ. Όσο για την διάρκεια ζωής του, αυτή είναι απεριόριστη αρκεί το σπίτι να συντηρείται εξωτερικά.
Το κόστος της μεταφοράς του στο σημείο που επιθυμείτε είναι στα 300 ευρώ και η συναρμολόγηση στα 800.
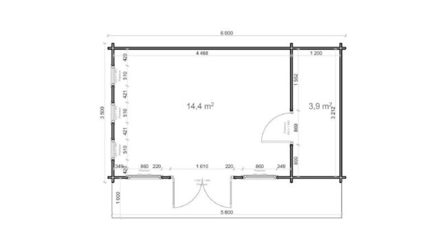
Δυο από τα σπίτια που μας έκαναν εντύπωση στην σελίδα της Oikodecor είναι το MERCATO και το ΑΝΓΚΕΛΟΝΙΑ PREMIUM.
Το ΑΝΓΚΕΛΟΝΙΑ PREMIUM ξεκινά από τα 8800 ευρώ, μπορείτε να το πάρετε έτσι ακριβώς όπως το βλέπετε ή μπορείτε να ζητήσετε τροποποιήσεις. Έχει εγγύηση 5 χρόνια + 5 εμποτισμένης ξυλείας













Το ΜΕΡΚΑΤΟ είναι και αυτό ένα πολύ όμορφο σπίτι με την τιμή του να είναι στα 9000 ευρώ.
Σύμφωνα με τον Oikosdecor το σπίτι είναι πολυχρηστικό με δίρριχτη οροφή ιδανικό για επαγγελματική χρήση, καντίνα, αίθουσα υποδοχής, γραφείο, χώρος γυμναστικής ή χαλάρωσης. Πακέτα διπλής τοιχοπoιίας και εμποτισμένης ξυλείας είναι διαθέσιμα αναλόγως των απαιτήσεων.
Δείτε το βίντεο
Περισσότερα ξύλινα σπίτια μπορείτε να δείτε στην σελίδα της Oikodecor


